X
7764.n01.p1322 - Bungalow-1 - Bungalow-1 (1)
3-4-normal
1-2-normal
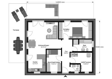
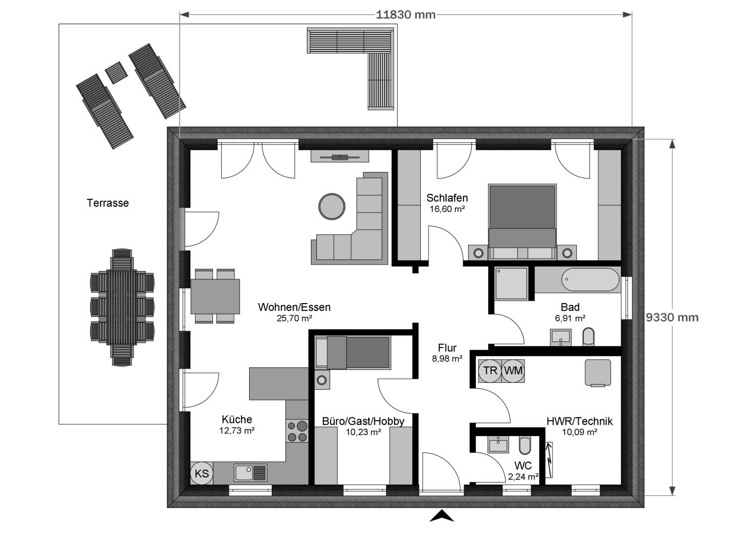
EG
6963_Bad_ab
Bedroom_dd
Kind_cc
6963_WEK_bc
6963_WEK_dd_1