Ein paar Hausbeispiele
Aktion Platzwunder
Bungalows
Family
City
Doppelhäuser
Standards
Menü
Aktion Platzwunder
Bungalows
Family
City
Doppelhäuser
Standards
X
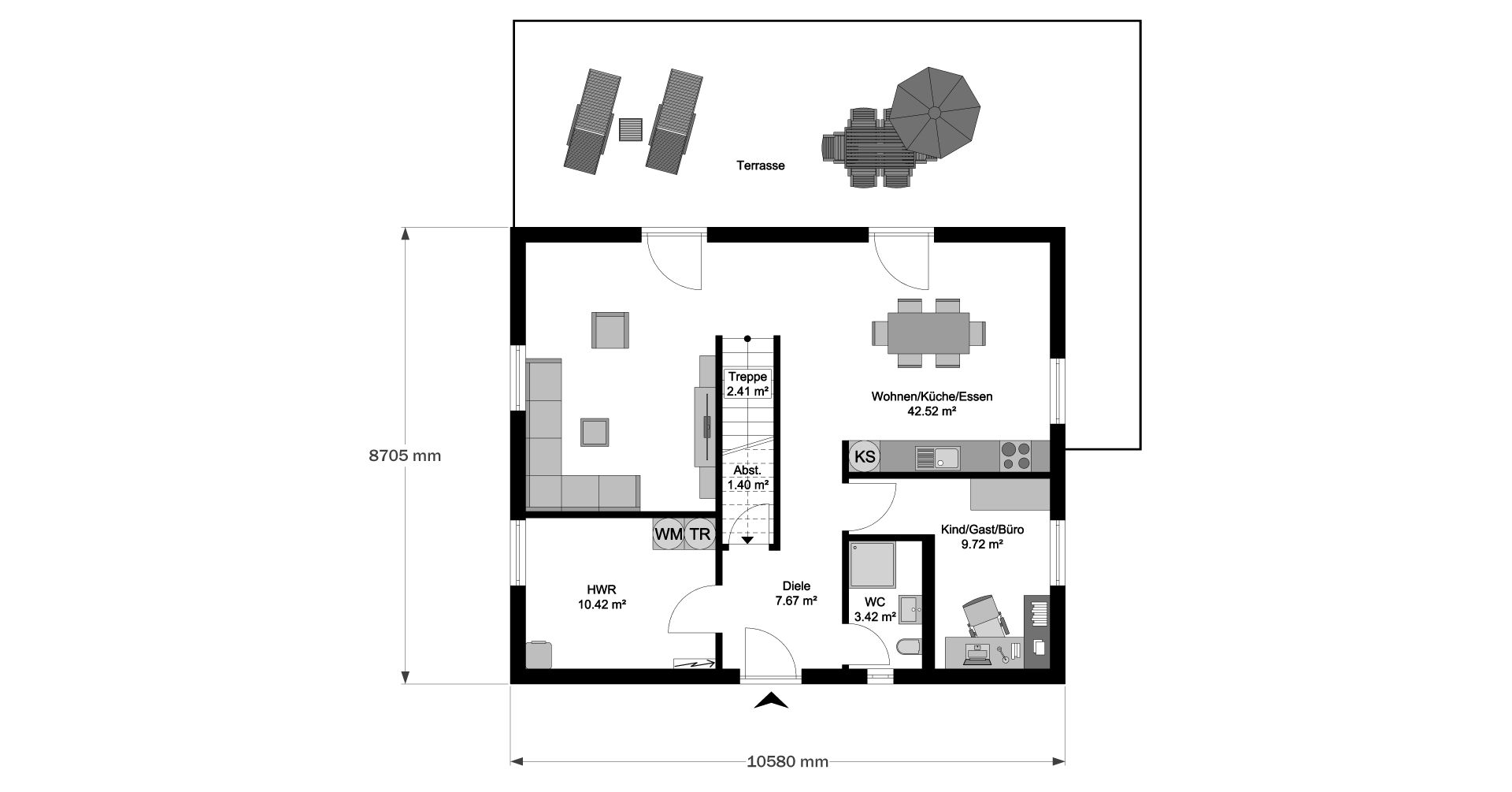
Family-Platzwunder 5 (871x1058)
Normal
Previous
Next
Loading...
02-03_N
03-03_N
01-02_N
03-04_N
EG
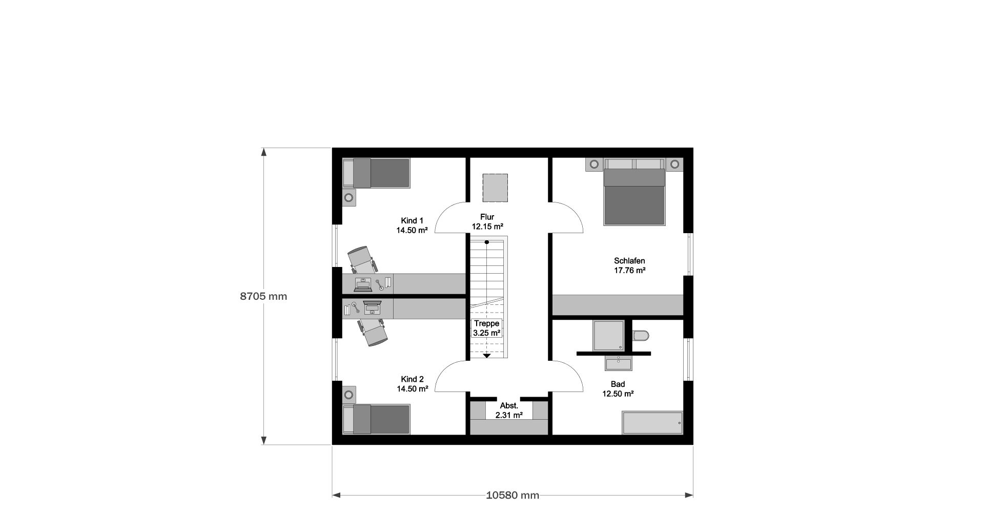
OG