7764.n01.p1322 - Plat-6 - Plat-6-EG
7764.n01.p1322 - Plat-6 - Plat-6-OG
02-03_N
03-04_N
01-02_N
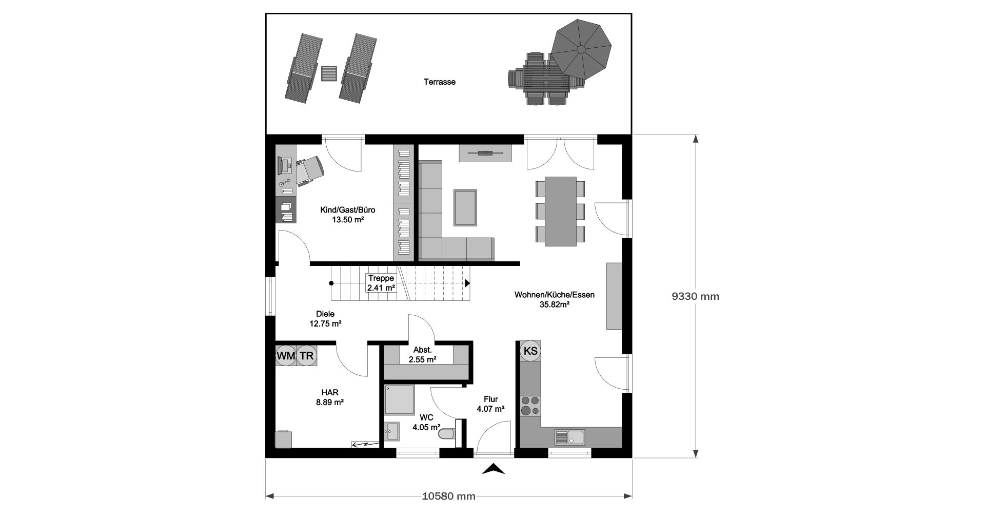
2D_EG
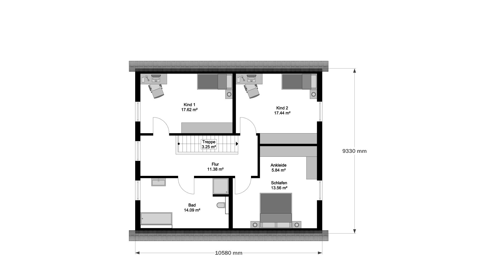
2D_OG