Ein paar Hausbeispiele
Luxvilla
MFH-Aktion 2025
Aktion Platzwunder
Family
Doppelhäuser
City
Bungalows
Standards
Menü
Luxvilla
MFH-Aktion 2025
Aktion Platzwunder
Family
Doppelhäuser
City
Bungalows
Standards
X
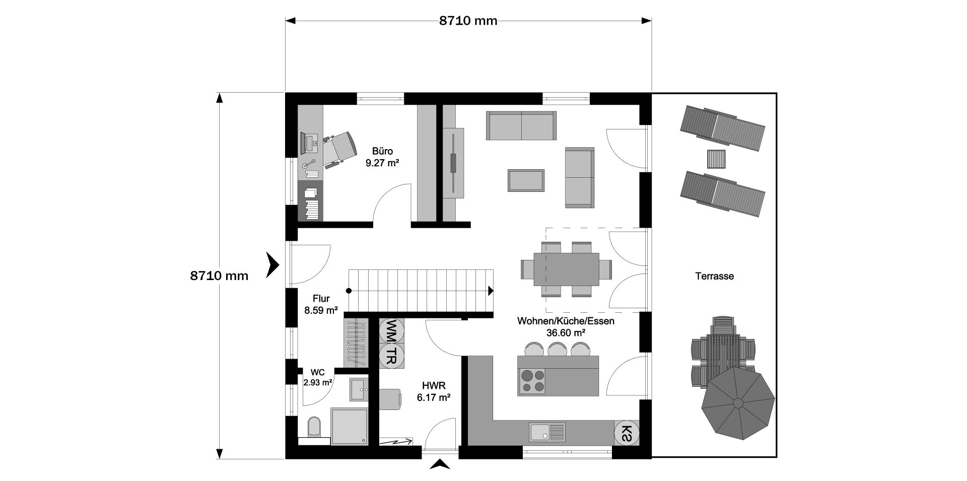
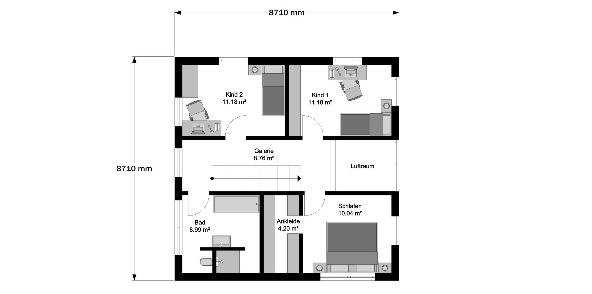
City L (871x871)
Normal
360°
Konfigurator
7764.n01.p1322 - City-L - City-L-EG
7764.n01.p1322 - City-L - City-L-OG
3-4
1-2
EG
OG