X
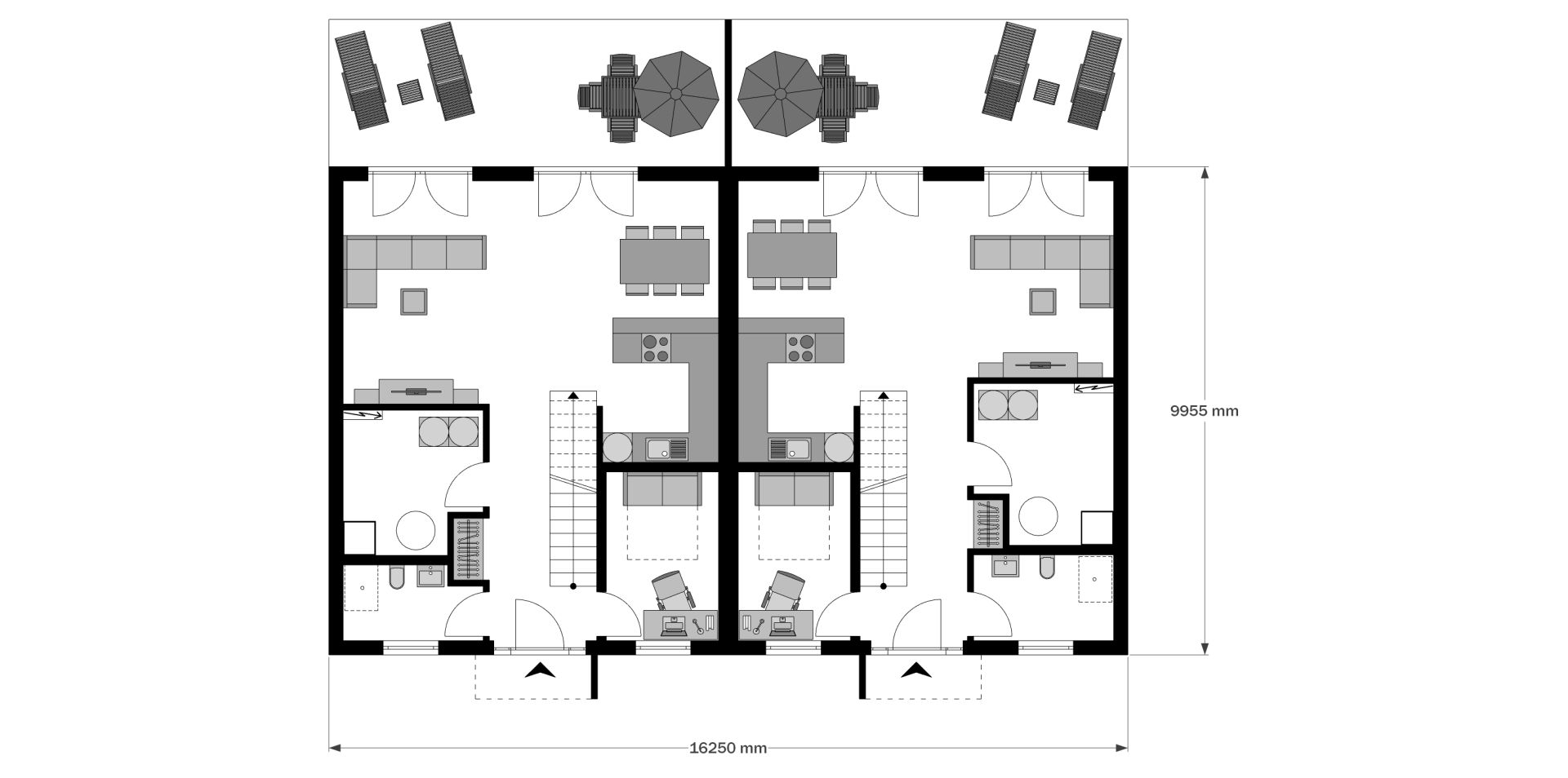
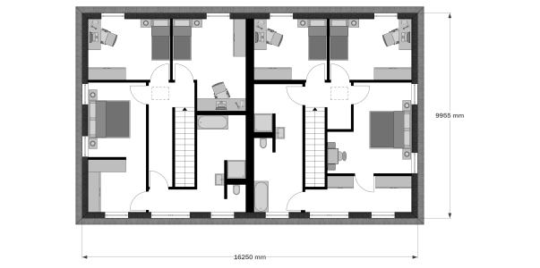
Doppelhaus 1
034n
141n
EG
OG